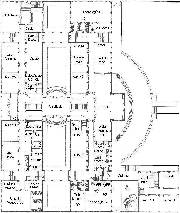
Planta baja

Este es el plano de la planta baja. Puedes hacer "clic" encima de las zonas que quieras para tener más detalles. Ver la planta alta.

Biblioteca Laboratorio de química Aula 25 Aula 10 Laboratorio de física Jefatura de estudios Sala de profesores Dibujo Departamento de dibujo Servidor Ícaro Conserjería Secretaría Archivo Despacho del secretario Servidor Ulises Sala de visitas Despacho del director Orientación Jefe de estudios y vicedirectora Tecnología Servidor Circe Departamento de Tecnología Aula 41: Tecnología Aula 42 Cafetería Porche Departamento de ingl&ecaute;s Aula 31 Aula 32 Aula Tecnología Aula 90 Aula 91 Aula 92 Servidor IES Majuelo Servidor Sala VIP Aula de música Cabina conserjes Taller informática Sala reuniones Planta Baja