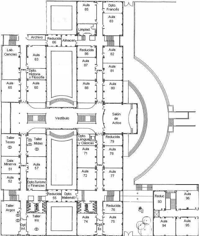
Planta alta

Este es el plano de la planta alta. Puedes hacer "clic" encima de las zonas que quieras para tener más detalles. Ver planta baja.

Lab. Ciencias Aula 65 Taller Teseo Servidor Teseo Aula 51 Servidor muralla, ulises(espejo) y ares(espejo) Servidor Argos Aula 63 Dpto. Historia Aula 60 Servidor Midas Aula 5X Dpto. Admon. y Finanzas Taller Iris Servidor Iris Vest�bulo Aula reducida 55 Aula 85 Aula reducida 86 Aula 87 Aula 88 Dpto. Lengua Aula 71 Aula 72 Aula 74 Dpto. Francés Aula 83 Aula 82 Aula 81 Aula 80 Salón de Actos Aula reducida 79 Aula 78 Aula 77 Aula reducida 76 Aula 75 Aula reducida 93 Aula 96 Aula 94 Aula 95 Dpto. Informática Sala Minerva Aula reducida 66 Dpto. Interpretación lengua signos Servidor Espejo Servidor Ares Almacen Cuarto limpiadoras Archivo Aula reducida 73 Planta Alta